建筑安全圖紙會審、設計漏項解讀(一)
建筑安全圖紙會審、設計漏項解讀(一)
很多企業在建設策劃期間由于未委托有資質的設計院或超范圍承攬設計或設計時圖紙漏項被暫停在項目繼續實施6個月處罰的決定。尤其是設計、審查報告與施工現場不符,與現場情況偏差較大,施工難以進行施工;導致需要變更設計或施工方案,增加成本和建筑工程安全風險。所以我們要注意合法合規,委托具有設計資質的單位承攬設計和設計審圖,現在運用技術最多的工具就是三維反映設計問題。



建設工程建筑設計方案及施工圖審查流程圖,以市政規劃建筑工程項目舉例,僅作參考,各地區有區別,以當地政府部門要求為準。

01 總平面圖審查要點


02 建筑專業施工圖紙審查要點





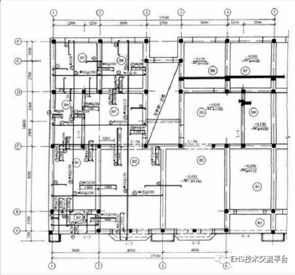
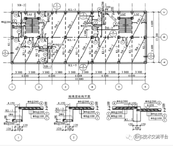
03 結構專業施工圖紙審查要點



(二)發包設計、承攬實施設計、設計審圖的法律責任分三種:
1.行政責任,通俗的說就是被建設部門通報或罰款,或注銷資質;
2.民事責任,通俗的說就是造成質量事故或經濟損失,賠錢;
3.刑事責任,通俗的說就是造成工程質量安全事故,是要被收監坐牢的。大家最害怕的也是吃牢飯。
(三)刑事責任相關法律依據
1.《中華人民共和國刑法》第一百三十七條(明確為直接責任人員,含義深刻)
工程重大安全事故罪,建設單位、設計單位、施工單位、工程監理單位違反國家規定,降低工程質量標準,造成重大安全事故的,對直接責任人員,處五年以下有期徒刑或者拘役,并處罰金;后果特別嚴重的,處五年以上十年以下有期徒刑,并處罰金。
2.《中華人民共和國建筑法》第七十三條(未明確具體責任人)
建筑設計單位不按照建筑工程質量、安全標準進行設計的,責令改正,處以罰款;造成工程質量事故的,責令停業整頓,降低資質等級或者吊銷資質證書,沒收違法所得,并處罰款;造成損失的,承擔賠償責任;構成犯罪的,依法追究刑事責任。
3.《生產安全事故報告和調查處理條例》第三條
根據生產安全事故(以下簡稱事故)造成的人員傷亡或者直接經濟損失,事故一般分為以下等級:
(一)特別重大事故,是指造成30人以上死亡,或者100人以上重傷(包括急性工業中毒,下同),或者1億元以上直接經濟損失的事故;
(二)重大事故,是指造成10人以上30人以下死亡,或者50人以上100人以下重傷,或者5000萬元以上1億元以下直接經濟損失的事故;
(三)較大事故,是指造成3人以上10人以下死亡,或者10人以上50人以下重傷,或者1000萬元以上5000萬元以下直接經濟損失的事故;
(四)一般事故,是指造成3人以下死亡,或者10人以下重傷,或者1000萬元以下直接經濟損失的事故。
